
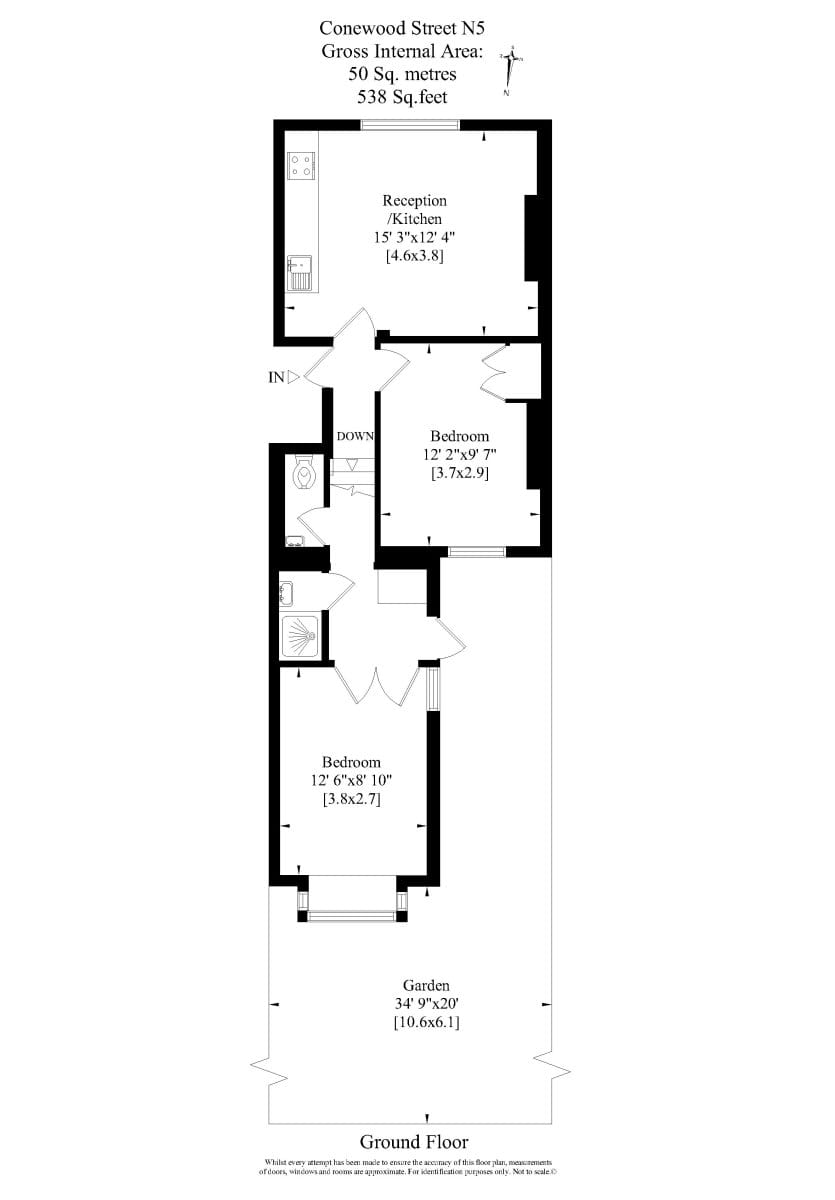
We tailor every marketing campaign to a customer’s requirements and we have access to quality marketing tools such as professional photography, video walk-throughs, drone video footage, distinctive floorplans which brings a property to life, right off of the screen.
Kitchen
Living/Dining Room
Bedroom 1
Bedroom 2
Bathroom
Separate WC