
We tailor every marketing campaign to a customer’s requirements and we have access to quality marketing tools such as professional photography, video walk-throughs, drone video footage, distinctive floorplans which brings a property to life, right off of the screen.
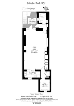
A large studio flat featuring approximaely 631 sq ft of living space. The flat is in need of modernising and offers fantastic potential. There is a huge living/entertaining space, a separate kitchen and separate sleeping area.
Arlington Road is one of Camden's premier addresses. Mornington Crescent and Camden Town tube stations are within striking distance. The wide open spaces of Primrose Hill and Regents Park are also close by. The flat is also convenient for Euston, Kings Cross and St Pancras International stations, and many bus routes into central London. This flat includes a share of the freehold and is being offered chain free.